| NIVEAU | PIÈCE | SURFACE |
- * Dont provisions sur charges : 60 € par mois
(régularisation annuelle) - Honoraires charge locataire : 564.81 € TTC
Dont honoraires état des lieux : 130.44 € TTC - Dépôt de garantie : 782 €
Appartement
CASTELNAU LE LEZ (34170)
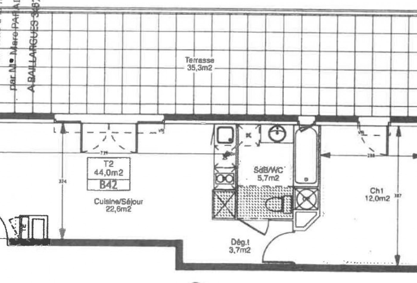
- 43 m²
- 2 pièce(s)
- 1 chambre(s)
- NC
Caastelnau, arrêt de tram Sablassou au pied de l'immeuble, dans une résidence de 2010, l'agence FRANCES IMMOBILIER vous propose à la location ce magnifique appartement F2 au dernier étage bénéficiant d'une très belle terrasse de 35 m² exposée sud-ouest.
Ce logement est entièrement repeint, équipé de climatisation réversible dans le séjour et la chambre, et un aménagement de cuisine est prévu dans le courant du mois de Juin.
Enfin, il bénéficie d'un garage fermé au sous-sol
Disponible le 01-03-2026
Loyer: 842.00 €* Dont provision sur charges : 60 € par mois (régularisation annuelle)
Honoraires charge locataire : 564,81 € TTC dont Frais de visite / dossier / rédaction du bail 434,37 € TTC
dont honoraires état des lieux : 130,44 € TTC
Dépôt de garantie : 782 €
Montant estimé des dépenses annuelles d'énergie pour un usage standard : entre 580 € et 840 € par an.
Prix moyens des énergies indexés au 01/01/2021 (abonnement compris).
cette annonce à un ami
Veuillez réessayer à nouveau



















